Spring Grove, Belfast
Spring Grove Belfast

Gallery


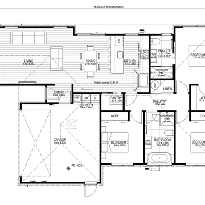
Property Summary
$829,000
Bedrooms: 3
Bathrooms: 2
Living Areas: 1
Garages: 2
Dwelling Size: 146 m²
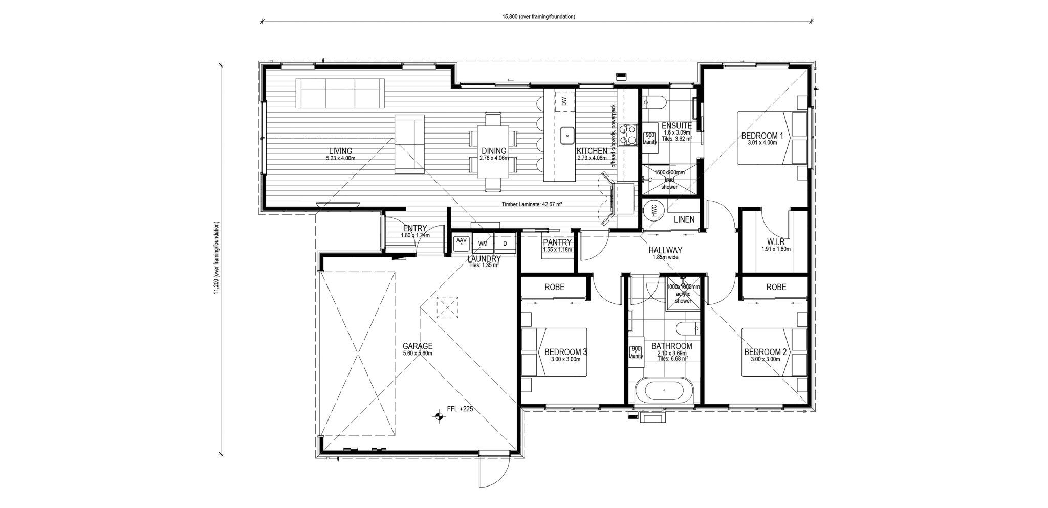
Spring Grove Belfast



$829,000
Bedrooms: 3
Bathrooms: 2
Living Areas: 1
Garages: 2
Dwelling Size: 146 m²