Sabys Estate
Lot 23, 73 Candys Road, Halswell

Gallery







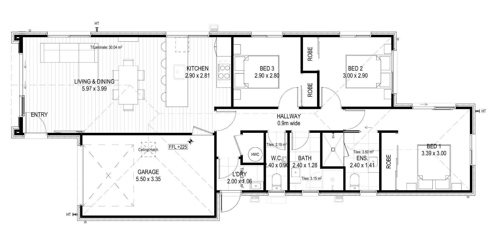
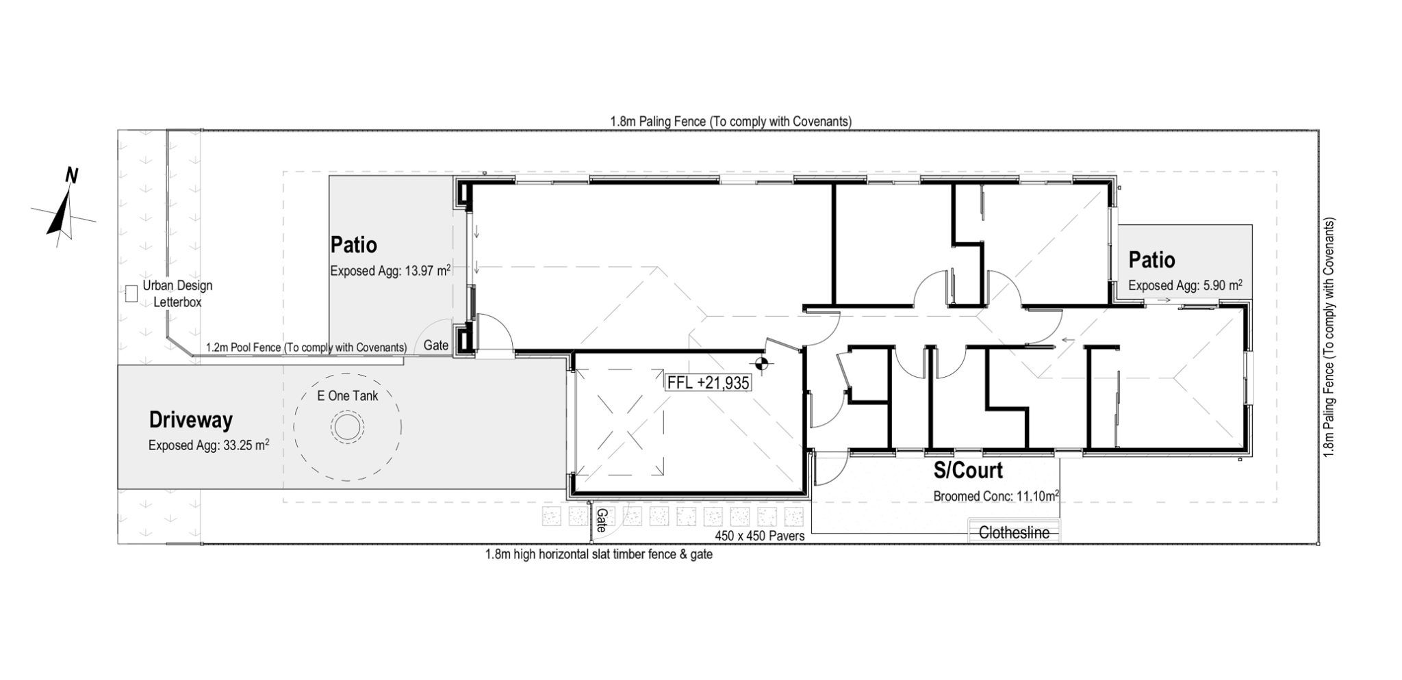
Property Summary
$759,000
Bedrooms: 3
Bathrooms: 2
Living Areas: 1
Garages: 1
Dwelling Size: 120 m²
Lot 23, 73 Candys Road, Halswell








$759,000
Bedrooms: 3
Bathrooms: 2
Living Areas: 1
Garages: 1
Dwelling Size: 120 m²