Rayner Street
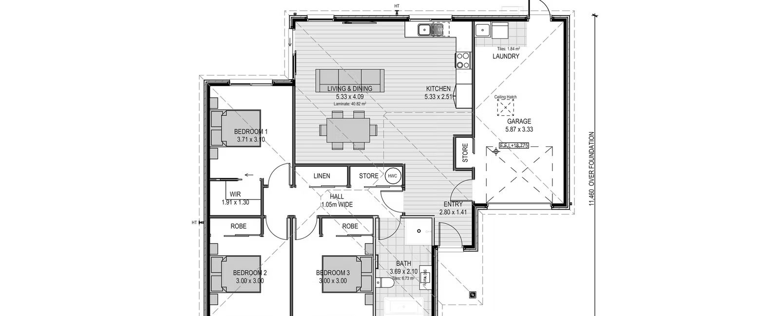
Unit 2, 21 Rayner Street, Temuka

Gallery

Property Summary
$629,000
Bedrooms: 3
Bathrooms: 2
Living Areas: 1
Garages: 1
Dwelling Size: 124 m²
Unit 2, 21 Rayner Street, Temuka


$629,000
Bedrooms: 3
Bathrooms: 2
Living Areas: 1
Garages: 1
Dwelling Size: 124 m²