Ravenswood, Waimakariri
Ravenswood Waimakariri

Gallery









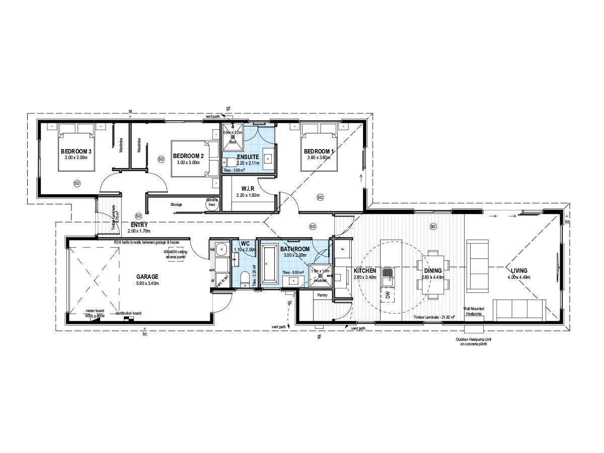
Property Summary
$759,000
Bedrooms: 3
Bathrooms: 2
Living Areas: 1
Garages: 1
Dwelling Size: 146 m²
Ravenswood Waimakariri










$759,000
Bedrooms: 3
Bathrooms: 2
Living Areas: 1
Garages: 1
Dwelling Size: 146 m²