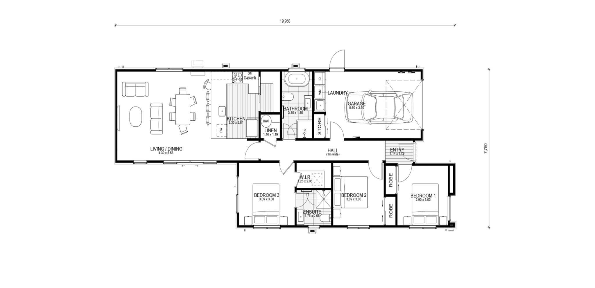
Prestons Grove
Lot 130 Prestons Grove, Marshland

Gallery




Property Summary
$759,000
Bedrooms: 3
Bathrooms: 2
Living Areas: 1
Garages: 1
Dwelling Size: 126 m²
Lot 130 Prestons Grove, Marshland





$759,000
Bedrooms: 3
Bathrooms: 2
Living Areas: 1
Garages: 1
Dwelling Size: 126 m²