Northlake
Lot 15 Northlake, Wanaka

Gallery

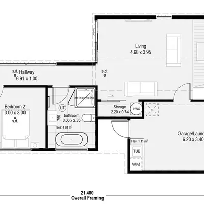
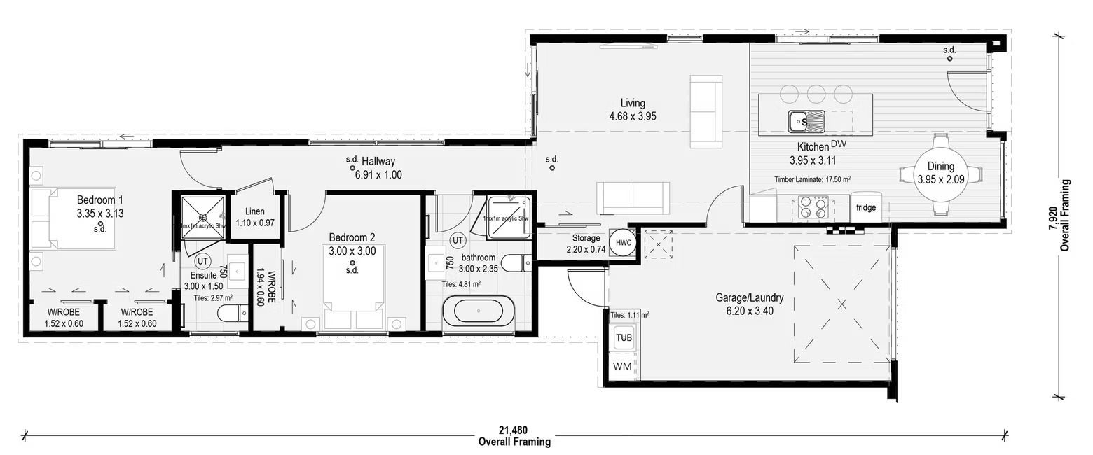
Property Summary
$999,000
Bedrooms: 2
Bathrooms: 2
Living Areas: 1
Garages: 1
Dwelling Size: 114 m²
Lot 15 Northlake, Wanaka


$999,000
Bedrooms: 2
Bathrooms: 2
Living Areas: 1
Garages: 1
Dwelling Size: 114 m²