Hereford Street, Christchurch Central
Hereford Street Christchurch Central 8011

Gallery







Property Summary
$569,000
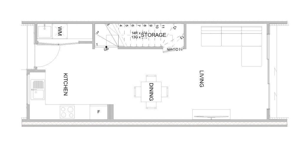
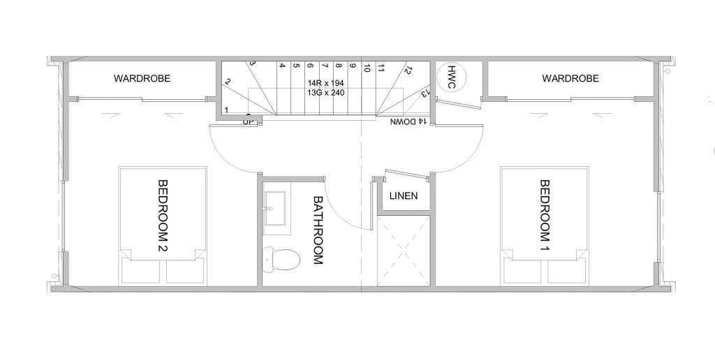
Bedrooms: 2
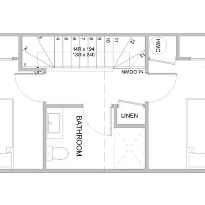
Bathrooms: 1
Toilets: 1
Living Areas: 1
Dwelling Size: 70 m²
Hereford Street Christchurch Central 8011








$569,000
Bedrooms: 2
Bathrooms: 1
Toilets: 1
Living Areas: 1
Dwelling Size: 70 m²