Beach Grove, Kaiapoi
Beach Grove Kaiapoi

Gallery


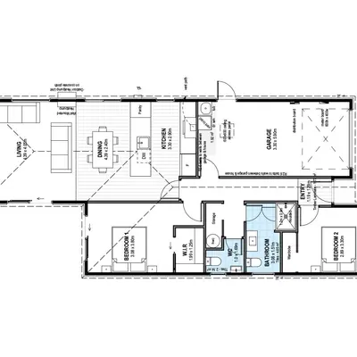
Property Summary
$625,000
Bedrooms: 2
Bathrooms: 2
Living Areas: 1
Garages: 1
Dwelling Size: 117 m²
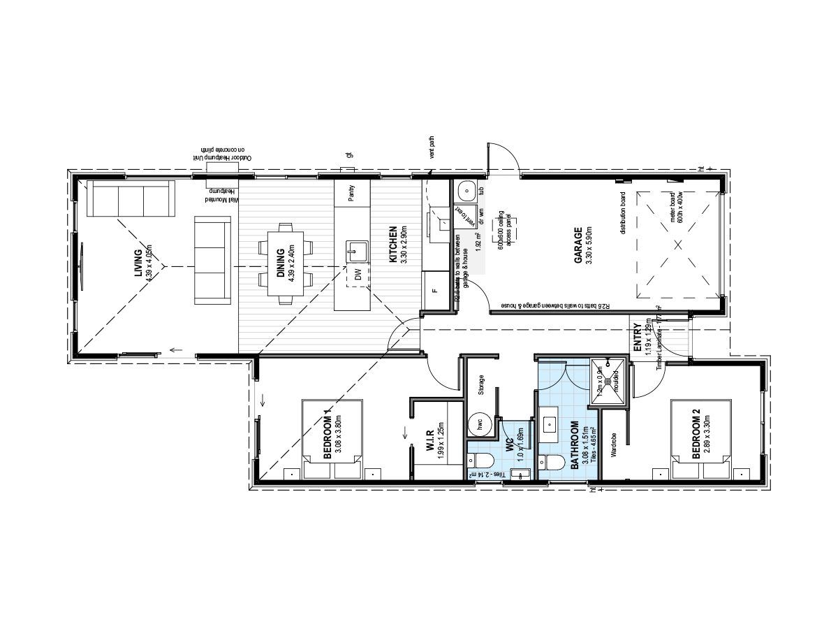
Beach Grove Kaiapoi



$625,000
Bedrooms: 2
Bathrooms: 2
Living Areas: 1
Garages: 1
Dwelling Size: 117 m²