Acland Park
Lot 16 Acland Park, Rolleston

Gallery






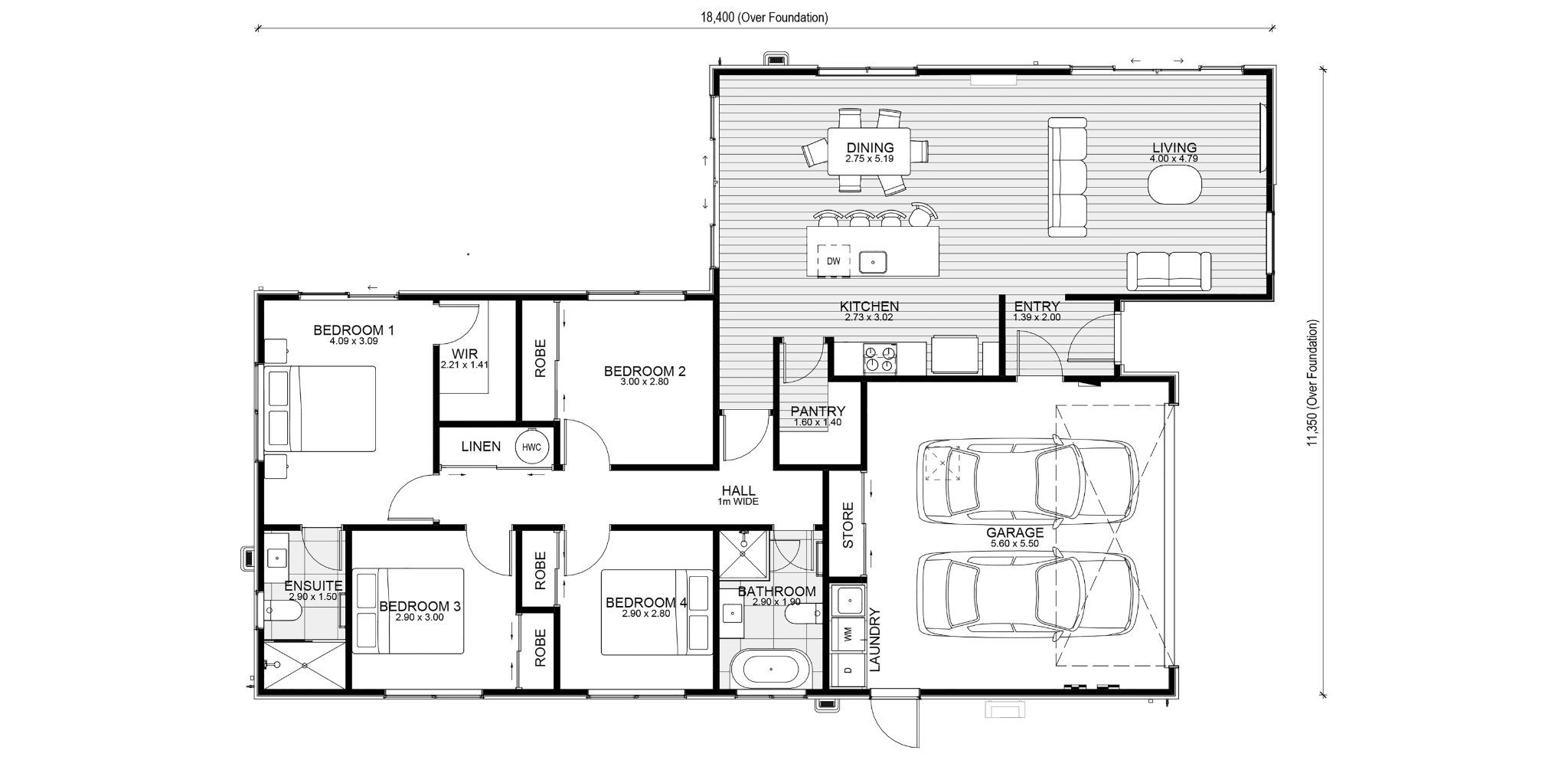
Property Summary
$769,000
Bedrooms: 4
Bathrooms: 2
Living Areas: 1
Garages: 2
Dwelling Size: 161 m²
Lot 16 Acland Park, Rolleston







$769,000
Bedrooms: 4
Bathrooms: 2
Living Areas: 1
Garages: 2
Dwelling Size: 161 m²